매물설명 # 논현동 신축 사옥 임대!
매물번호 7160
소재지 서울 강남구 논현동 지하철 7호선 학동역
임대보증금/임대료 6억 / 4000만 관리비
임대면적 889m2(269 평) 전용면적 793m2(240 평)
건물규모(전체층) 지하 1층 / 5층 층수/룸 개수 전체층/0개
전체주차대수 5대 가능주차대수 자주식 5대
냉/난방 개별유 / 개별유 엘리베이터
준공년도 2022 입주가능일
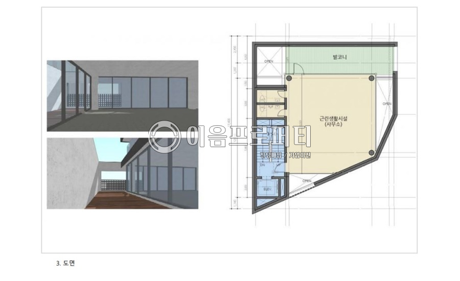
건물용도 근린생활시설  입구방향
매물특징

# 신축사옥 임대!

 

# 깔끔하고 세련된 외관!
 

# 넓은 실면적!

이음프로퍼티 02-511-4585
목록으로

유사매물보기

관련매물과 유사 조건의 다른 매물

더보기

서초구 서초동

임대면적 540m2(163 평)

뱅뱅사거리 리모델링후 첫입주 사옥

  • 2억
  • 2200만

강남구 신사동

임대면적 122m2(37 평)

신사동 도보 2분거리 / 통유리사옥!

  • 7000만
  • 600만

강남구 신사동

임대면적 138m2(42 평)

신사동 도보 2분거리 / 통유리사옥!

  • 7000만
  • 650만